TERRENO AGRICOLO DI 6HA A FERMO

TERRENO AGRICOLO DI 6HA A FERMO

In vendita
Terreno Agricolo
Fermo
Descrizione
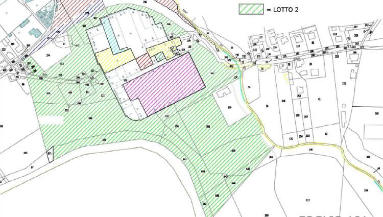
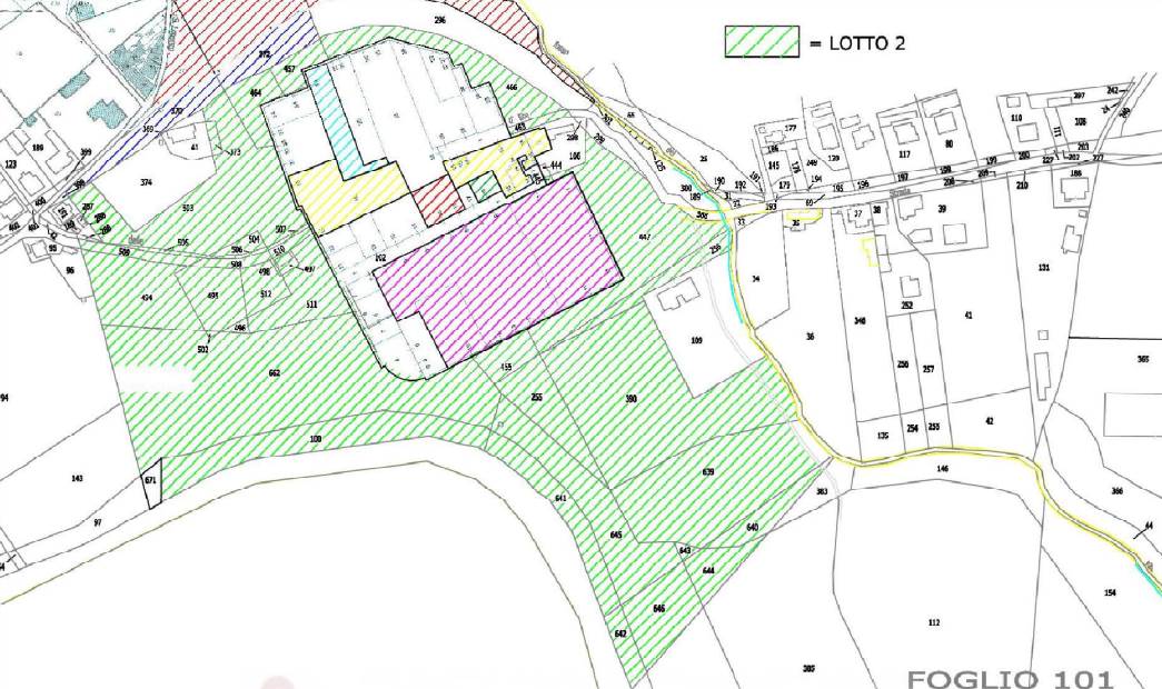
Con la possibilità di formulare offerta pari a 37.005,00 € proponiamo in vendita questo terreno agricolo di 63104 mq sito sulla vallata del Fiume Ete Vivo in C.da Caldarette di Fermo. Il terreno in parte pianeggiante ed in parte in lieve pendenza sull’argine del fiume è destinato in gran parte alla produzione agricola, all’allevamento e alla semina per la coltivazione di cereali, ortaggi e foraggere. Parte del terreno è occupato da tre diverse servitù di passaggio.
Il terreno circonda perimetralmente un capannone e si sviluppa sul fronte sud est e nord dello stesso.

Considerando le metrature a disposizione, la giacitura in gran parte pianeggiante e l’estrema competitività del prezzo rispetto ai prezzi praticati, riteniamo che la soluzione sia un ottimo investimento in termini commerciali tra le migliori opzioni disponibili ad oggi sul mercato di riferimento.

Vieni a trovarci in agenzia per consultare la documentazione tecnica a nostra disposizione e per ricevere una prima analisi dedicata dell’immobile.

CASA&ASTE.IT offre assistenza e consulenza in ogni fase della vendita in asta:

-analisi tecnico-legale della perizia;

-quantificazione dei costi aggiuntivi in asta;

-valutazione commerciale dedicata all’immobile;

-richiesta di sopralluogo;

-formulazione offerta;

-partecipazione all’asta;

-assistenza sino al trasferimento di proprietà e alla consegna delle chiavi.

…..con noi…la tua asta senza pensieri e senza sorprese.
Caratteristiche principali
Codice:
79/2022 2 FM
Città:
Fermo
Categoria:
Terreno Agricolo
Locali:
22
Mq:
63104
Classe energetica:
Non applicabile
Stato terreno:
Libero
Mappa
contrada calderette - Fermo (FM)
Asta giudiziaria
Richiedi visione
Invia
WhatsApp Casa&Aste
Cookie preference