COMPLESSO IMMOBILIARE CON 2 APPARTAMENTI E UN DEPOSITO A CORRIDONIA

COMPLESSO IMMOBILIARE CON 2 APPARTAMENTI E UN DEPOSITO A CORRIDONIA

In vendita
Stabile / Palazzo
Corridonia
Descrizione
Con la possibilità di formulare offerta pari a € 79.950,00 proponiamo in vendita questo compendio composto da due appartamenti al piano primo e un deposito al piano secondo con balcone, terrazzi e locali accessori, inserito in edificio plurifunzionale frazionato nel tempo a destinazione residenziale ed artigianale. Il fabbricato originariamente adibito a laboratorio e sala d'esposizione con sovrastante abitazioni ed uffici

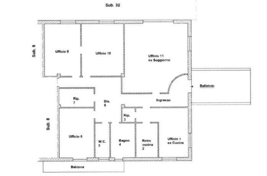
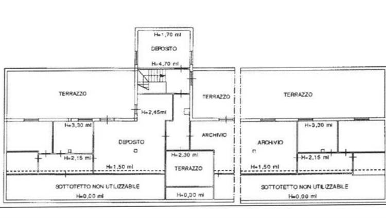
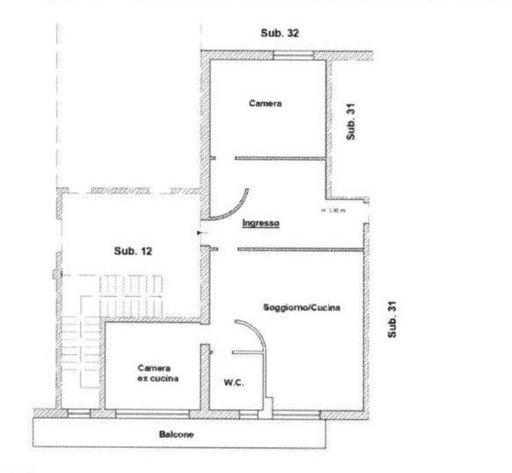
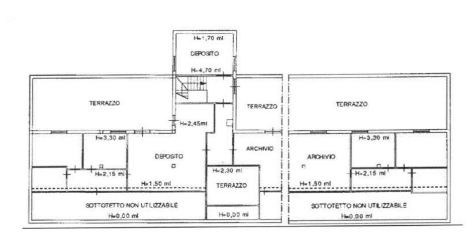
Il lotto è formato da una prima unità abitativa al piano primo con una superficie lorda di 101 mq composta da ingresso, cucina, sala, bagno e camera; da una seconda unità circa 205 mq lordi sempre al piano primo, attualmente adibita ad uffici, composta da ingresso-corridoio, soggiorno, cucina con ripostiglio, tre camere, due bagni e un balcone. Completa il lotto un deposito al piano secondo con accesso da scala interna; internamente è composto da due locali deposito, un archivio, quattro piccoli vani, due sottotetti non utilizzabili e tre terrazzi. Allo stato attuale il deposito si trova al grezzo sono presenti i divisori gli intonaci alle pareti e la parziale rete di distribuzione dell'impiantistica La consistenza complessiva esprime un lotto di dimensioni rilevanti, adatto a chi cerca superfici da riorganizzare in chiave residenziale, professionale o di servizio.
Le finiture dei due appartamenti risultano di livello ordinario, coerenti con l’epoca di realizzazione del fabbricato (anni ’70); le stesse sono caratterizzate da: pavimentazioni in ceramica/monocottura, rivestimenti nei servizi e cucina in ceramica, infissi in legno con vetro semplice, porte interne in legno.

Considerando l’ampia consistenza del lotto, la presenza di più unità, i terrazzi e il prezzo particolarmente competitivo, riteniamo che la soluzione sia un ottimo investimento in termini abitativi con interessanti prospettive di sviluppo e redditività nel breve come nel lungo periodo.

Vieni a trovarci in agenzia per consultare la documentazione tecnica a nostra disposizione e per ricevere una prima analisi dedicata dell’immobile.

CASAEASTE.IT offre assistenza e consulenza in ogni fase della vendita in asta:

analisi tecnico-legale della perizia;

quantificazione dei costi aggiuntivi in asta;

valutazione commerciale dedicata all’immobile;

richiesta di sopralluogo;

formulazione offerta;

partecipazione all’asta;

assistenza sino al trasferimento di proprietà e alla consegna delle chiavi.

…..con noi…la tua asta senza pensieri e senza sorprese.

Nota operativa: in questa risposta non sono riuscito a generare lo ZIP con l’estrazione immagini dai PDF.
Caratteristiche principali
Codice:
7/2021 2 MC
Città:
Corridonia
Categoria:
Stabile / Palazzo
Locali:
11,5
Camere:
5
Bagni:
3
Mq:
670
Mq Giardino:
1780
Balconi:
2
Mq Balcone:
22
Terrazzi:
3
mq Terrazzo:
195
Piano:
1
Anno:
1975
Classe energetica:
F
Stato Immobile:
Buono
Grado:
Economico
Posizione:
Periferia
Lati Liberi:
4
Giardino:
Cortile
Riscaldamento:
Autonomo
Tipo Riscaldam.:
Caldaia
Tipo Impianto:
Radiatori
Fonte Energetica:
Metano
Infissi:
Alluminio
Serramenti:
Buono
Persiana:
Tapparella PVC
Pavim. Giorno:
Laminato
Pavim. Notte:
Ceramica
Accessori
Ripostiglio
Mappa
Via Le Grazie , 38 - Corridonia (MC)
Asta giudiziaria
Mancano
45 giorni
alla chiusura della vendita
Richiedi visione
Invia
WhatsApp Casa&Aste
Cookie preference