APPARTAMENTO SU DUE LIVELLI A SANT'ELPIDIO A MARE

APPARTAMENTO SU DUE LIVELLI A SANT'ELPIDIO A MARE

In vendita
Appartamento
Sant'Elpidio a Mare
Descrizione
Con la possibilità di formulare offerta pari a 61.675,00 € proponiamo in vendita questo ampio e luminoso Appartamento al piano primo con mansarda dotato di una veduta incantevole sulle colline marchigiane.

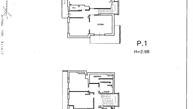
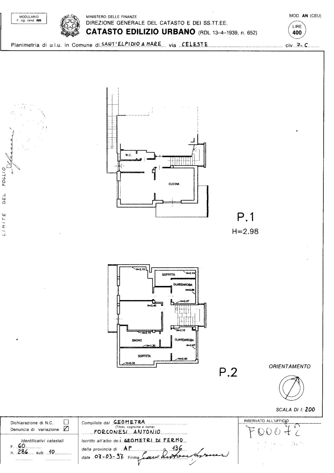
Trattasi di un appartamento al P1 con sovrastante mansarda, collocato in un fabbricato ubicato lungo la strada principale che da Sant’Elpidio a Mare conduce a Monte Urano. Poco distante dal centro storico. La palazzina è munita di recinzione con accesso pedonale fronte strada. Corte comune alle altre unità abitative. L’appartamento si compone da un ampio soggiorno, cucina abitabile, un bagno. Nella mansarda trovasi la zona notte con due camere, uno studio, bagno e lavanderia. L’appartamento è dotato di un ampio balcone ad angolo nella zona cucina e di un balcone al piano secondo. La superficie commerciale dell’unità è di 189 mq.

Considerate le metrature a disposizione, la gradevole fattura esterna del fabbricato, le buone condizioni delle finiture interne e l’estrema competitività del prezzo riteniamo che la soluzione sia un ottimo investimento in termini abitativi con interessanti prospettive di redditività nel breve come nel lungo periodo.

Vieni a trovarci in agenzia per consultare la documentazione tecnica a nostra disposizione e per ricevere una prima analisi dedicata all’immobile.

CASA&ASTE.IT offre assistenza e consulenza in ogni fase della vendita in asta:

-analisi tecnico- legale della perizia

-valutazione commerciale dedicata all’immobile

-richiesta di sopralluogo

-formulazione offerta

-partecipazione all’asta

-assistenza legale sino al trasferimento di proprietà

…..con noi…la tua asta senza pensieri e senza sorprese.
Caratteristiche principali
Codice:
35/2020 U FM
Città:
Sant'Elpidio a Mare
Categoria:
Appartamento
Locali:
6,5
Camere:
3
Bagni:
2
Mq:
189
Balconi:
2
Piano:
1
Anno:
1964
Anno ristrutturazione:
1996
Classe energetica:
E
Stato Immobile:
Buono
Grado:
Medio
Posizione:
Collina
Panorama:
Vista Monti
Orientamento:
Sud
Lati Liberi:
4
Tipo Cucina:
Abitabile
Riscaldamento:
Autonomo
Tipo Riscaldam.:
Caldaia
Tipo Impianto:
Radiatori
Fonte Energetica:
Metano
Infissi:
Legno Doppio Vetro
Serramenti:
Buono
Persiana:
Persiana PVC
Pavim. Giorno:
Cotto
Pavim. Notte:
Cotto
Accessori
Doppi Vetri
Lavanderia
Ripostiglio
Mappa
via celeste, 7/c - Sant'Elpidio a Mare (FM)
Distanze
Posizione
Mare8 km
Asta giudiziaria
Richiedi visione
Invia
WhatsApp Casa&Aste
Cookie preference