APPARTAMENTO SU DUE LIVELLI A MONTEGRANARO

APPARTAMENTO SU DUE LIVELLI A MONTEGRANARO

In vendita
Appartamento
Montegranaro
Descrizione
LOTTO 2- Con la possibilità di formulare offerta pari a 66.075,00 € proponiamo in vendita questo Appartamento su due livelli primo e secondo di 298 mq di superficie commerciale.

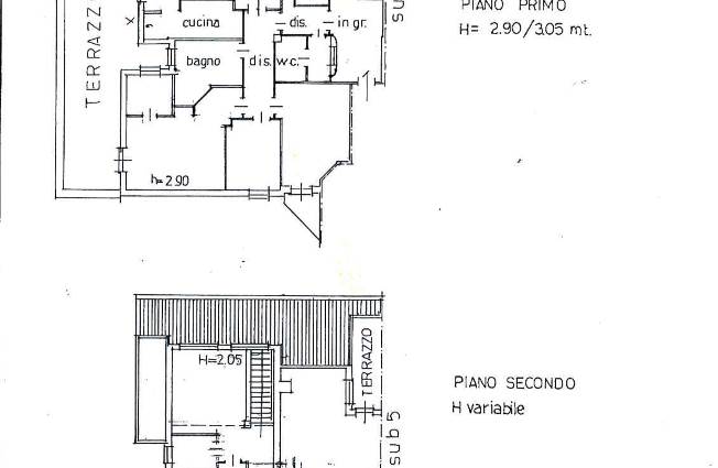
Appartamento in buono stato, situato al piano primo e secondo di un edificio, accessibile da androne comune all'altra unità immobiliare. Si sviluppa su due piani collegati tra loro da una scala interna. L'appartamento è composto da ingresso su soggiorno, wc di servizio, ampia cucina con retro-cucina, zona notte con tre camere da letto e due bagni. Al piano superiore (sottotetto) vi è un ampio spazio in parte adibito a lavanderia.

L'intero edificio sviluppa 3 piani, 3 piani fuori terra. Immobile costruito nel 1977 ristrutturato nel 2012. L'unità LOTTO 2 occupa la sezione ovest del fabbricato.

Si fa presente che è possibile acquistare in asta anche il LOTTO 1 appartamento nello stesso stabile che occupa la porzione est.

Considerate le metrature a disposizione, la recente ristrutturazione dell’edificio e l’estrema competitività del prezzo, riteniamo che la soluzione sia un ottimo investimento in termini abitativi con interessanti prospettive di redditività nel breve come nel lungo periodo.

Vieni a trovarci in agenzia per consultare la documentazione tecnica a nostra disposizione e per ricevere una prima analisi dedicata all’immobile.

CASA&ASTE.IT offre assistenza e consulenza in ogni fase della vendita in asta:

-analisi tecnico- legale della perizia

-valutazione commerciale dedicata all’immobile

-richiesta di sopralluogo

-formulazione offerta

-partecipazione all’asta

-assistenza legale sino al trasferimento di proprietà

…..con noi…la tua asta senza pensieri e senza sorprese.
Caratteristiche principali
Codice:
30/2021 2 FM
Città:
Montegranaro
Categoria:
Appartamento
Locali:
11
Camere:
3
Bagni:
3
Mq:
293
Terrazzi:
1
mq Terrazzo:
17
Piano:
1
Anno:
1977
Anno ristrutturazione:
2002
Classe energetica:
E
Stato Immobile:
Buono
Grado:
Medio
Panorama:
Vista Aperta
Orientamento:
Ovest
Lati Liberi:
3
Riscaldamento:
Autonomo
Tipo Riscaldam.:
Caldaia
Tipo Impianto:
Radiatori
Fonte Energetica:
Metano
Acqua Calda:
Autonoma
Infissi:
Legno
Serramenti:
Buono
Persiana:
Persiana PVC
Pavim. Giorno:
Cemento
Pavim. Notte:
Parquet
Pavim. Cucina:
Ceramica
Accessori
Lavanderia
Ripostiglio
Mappa
Via Papa Giovanni XXIII, 11 - Montegranaro (FM)
Asta giudiziaria
Mancano
24 giorni
alla chiusura della vendita
Richiedi visione
Invia
WhatsApp Casa&Aste
Cookie preference