APPARTAMENTO PT CON CORTE A SANT'ELPIDIO A MARE

APPARTAMENTO PT CON CORTE A SANT'ELPIDIO A MARE

In vendita
Appartamento
Sant'Elpidio a Mare
Descrizione
LOTTO 44+69: Con la possibilità di formulare offerta pari a 90.885,00 € proponiamo in vendita questo Appartamento al piano terra con corte esclusiva e garage inserito in un edificio costruito nel 2007 di 3 Piani fuori terra oltre ad un piano seminterrato. L’edifico è parte di un complesso residenziale costituito da altre 3 palazzine e si trova in zona Bivio Cascinare a soli 3 km dal litorale di Porto Sant’Elpidio.

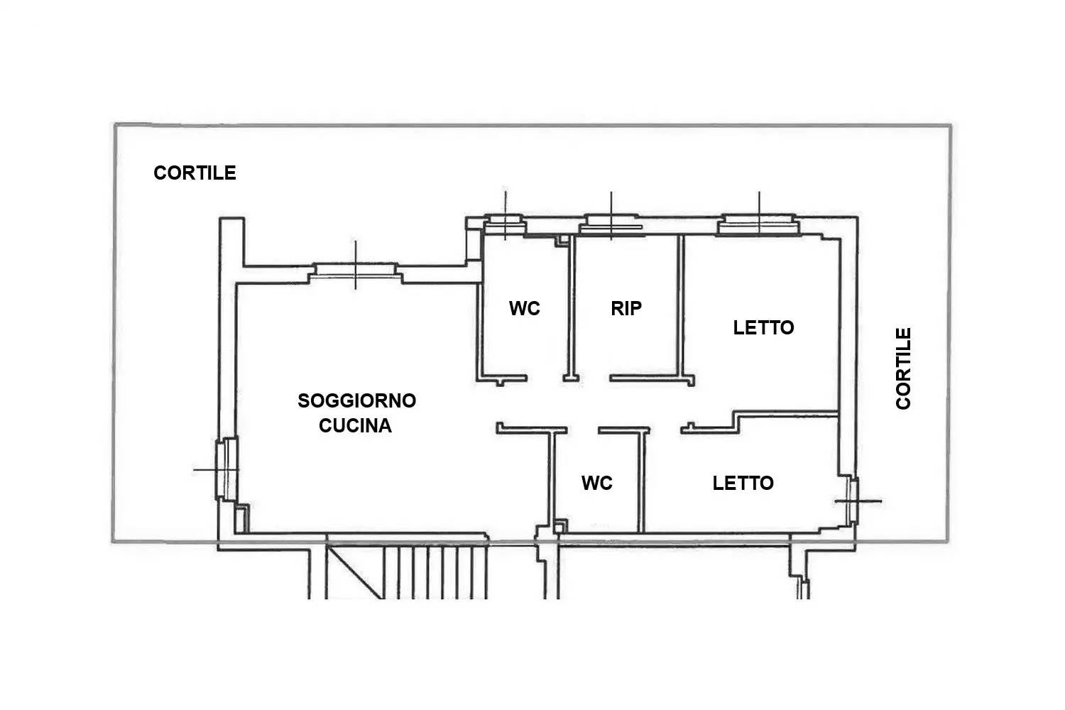
L’accesso all’appartamento avviene dal vano scala condominiale con ascensore; l’unità abitativa con una superficie interna di 88 mq risulta composta da: ingresso-cucina-soggiorno, disimpegno zona notte, due camere, due bagni ed un ripostiglio.
I vari ambienti sono completamente rifiniti con pareti e soffitti intonacati, pavimenti in parquet, infissi di finestra, porta-finestra in legno doppio vetro e persiane in allumino. Risulta presente impianto termico con radiatori alimentati da caldaia a metano ed impianto di climatizzazione estiva con split per aria condizionata. Pertinenza esclusiva dell'abitazione è una corte di 251 mq completamente recintata e pavimentata con elementi in gres.

Il mobilio inserito in vendita ed inventariato si riferisce: ad una cucina componibile, un tavolo legno bianco e 4 sedie, una parete attrezzata soggiorno, un letto matrimoniale con materasso, due comodini, un comò ed un armadio.
Compreso nella vendita è presente un box auto interrato di circa 48 mq dal quale si ha accesso dalla corte comune tramite una rampa con pavimento in cemento. Il garage risulta completamente rifinito con pareti e soffitti intonacati pavimento in ceramica e porta basculante in metallo.

Considerando la recente costruzione del fabbricato, le metrature a disposizione, le buone finiture e la vicinanza dal mare, riteniamo che la soluzione sia un ottimo investimento in termini abitativi con interessanti prospettive di redditività nel breve come nel lungo periodo.

Vieni a trovarci in agenzia per consultare la documentazione tecnica a nostra disposizione e per ricevere una prima analisi dedicata dell’immobile.

CASA&ASTE.IT offre assistenza e consulenza in ogni fase della vendita in asta:

-analisi tecnico-legale della perizia;

-quantificazione dei costi aggiuntivi in asta;

-valutazione commerciale dedicata all’immobile;

-richiesta di sopralluogo;

-formulazione offerta;

-partecipazione all’asta;

-assistenza sino al trasferimento di proprietà e alla consegna delle chiavi.

…..con noi…la tua asta senza pensieri e senza sorprese.
Caratteristiche principali
Codice:
15/2012 2515119 FM
Città:
Sant'Elpidio a Mare
Categoria:
Appartamento
Locali:
4,5
Camere:
2
Bagni:
2
Mq:
125
Box:
1
Mq Box:
48
Mq Giardino:
251
Piano:
Terra
Anno:
2007
Classe energetica:
C
Stato Immobile:
Buono
Grado:
Medio
Posizione:
Periferia
Panorama:
Vista Giardino
Orientamento:
Est
Lati Liberi:
3
Giardino:
Privato
Arredi:
Arredato
Riscaldamento:
Autonomo
Tipo Riscaldam.:
Caldaia
Tipo Impianto:
Radiatori
Fonte Energetica:
Metano
Acqua Calda:
Autonoma
Raffrescamento:
Split
Infissi:
Legno Doppio Vetro
Serramenti:
Buono
Persiana:
Persiana Metallo
Pavim. Giorno:
Parquet
Pavim. Notte:
Parquet
Pavim. Cucina:
Parquet
Pavim. Bagno:
Ceramica
Pavimento:
Ceramica
Tipo Saracinesca:
Manuale
Accessori
Aria Condizionata
Ascensore
Doppi Vetri
Porta Blindata
Ripostiglio
Mappa
Via Fratte, 6719 - Sant'Elpidio a Mare (FM)
Asta giudiziaria
Mancano
22 giorni
alla chiusura della vendita
Richiedi visione
Invia
WhatsApp Casa&Aste
Cookie preference