APPARTAMENTO PT CON GARAGE E DEPOSITO A CUPRA MARITTIMA

APPARTAMENTO PT CON GARAGE E DEPOSITO A CUPRA MARITTIMA

In vendita
Appartamento
Cupra Marittima
Descrizione
Con la possibilità di formulare offerta pari a 296.250,00 € proponiamo in vendita un appartamento al piano terra con garage e deposito inseriti all'interno di un edificio la cui costruzione è stata ultimata nel 2020.

L'edifico condominiale si sviluppa su tre piani, di cui uno interrato dove sono state realizzate le autorimesse e gli spazi condominiali, mentre il piano terra e il primo piano sono destinati alle residenze civili.

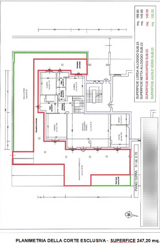
L'unità ha accesso autonomo e una superficie interna di oltre 160 mq e una corte esclusiva di circa 250 mq. La superficie della corte pavimentata risulta di 145 mq mentre la parte a verde copre la restante porzione di corte per circa105 mq. L'appartamento al piano terra si compone di : ingresso, soggiorno e pranzo, cucina, ripostiglio, n. 3 camere da letto camera, disimpegni e n. 2 bagni. Il collegamento interno dal piano terra al piano seminterrato è garantito da scala interna di proprietà. Al piano interrato sono stati realizzati ripostiglio e bagno.

L’appartamento è intonacato al civile su pareti e soffitto, il pavimento dell’atrio, angolo cottura, camera da letto ed il bagno sono in “gres-porcellanato“. I bagni sono rivestiti con mattonelle in ceramica. Le porte interne risultano in legno tamburato. Il portoncino d’ingresso all’appartamento al piano terra risulta del tipo “ blindato". Gli infissi esterni sono in legno con vetro e persiane e griglie antintrusione in acciaio .L’impianto elettrico è del tipo sottotraccia, le lampade normali ad incandescenza risultano funzionanti al piano terra . L’impianto termico è funzionante ed è stato realizzato con una caldaia a gas GPL collocata esterno con impianto di riscaldamento a pavimento radiante a pavimento.

Nel seminterrato sono presenti un garage di 24 mq e un deposito di 24mq. L’acceso per entrambi i locali avviene attraverso una rampa asfaltata condominiale.

Considerando le ampie metrature a disposizione, le finiture interne dei locali, la posizione strategica dell’edificio vicino al mare e l’estrema competitività del prezzo, riteniamo che la soluzione sia un ottimo investimento con interessanti prospettive di redditività nel breve come nel lungo periodo.

Vieni a trovarci in agenzia per consultare la documentazione tecnica a nostra disposizione e per ricevere una prima analisi dedicata dell’immobile.

CASA&ASTE.IT offre assistenza e consulenza in ogni fase della vendita in asta:
-analisi tecnico-legale della perizia;

-quantificazione dei costi aggiuntivi in asta;

-valutazione commerciale dedicata all’immobile;

-richiesta di sopralluogo;

-formulazione offerta;

-partecipazione all’asta;

-assistenza sino al trasferimento di proprietà e alla consegna delle chiavi.

…..con noi…la tua asta senza pensieri e senza sorprese.
Caratteristiche principali
Codice:
77/2024 U AP-G05
Città:
Cupra Marittima
Categoria:
Appartamento
Locali:
8,5
Camere:
3
Bagni:
3
Mq:
248
Box:
1
Mq Box:
24
Mq Giardino:
250
Piano:
1
Anno:
2020
Classe energetica:
A2
Stato Immobile:
Ottimo
Grado:
Medio
Posizione:
Mare
Panorama:
Vista Aperta
Orientamento:
Est
Lati Liberi:
3
Giardino:
Privato
Riscaldamento:
Autonomo
Tipo Riscaldam.:
Caldaia
Tipo Impianto:
Pavimento
Fonte Energetica:
GPL
Acqua Calda:
Autonoma
Infissi:
Legno
Serramenti:
Buono
Persiana:
Persiana Metallo
Pavim. Giorno:
Gres Porcellanato
Pavim. Notte:
Gres Porcellanato
Pavim. Cucina:
Gres Porcellanato
Pavim. Bagno:
Gres Porcellanato
Pavimento:
Ceramica
Tipo Saracinesca:
Manuale
Accessori
Doppi Vetri
Ingresso Indipendente
Porta Blindata
Ripostiglio
Mappa
Via San Gregorio Magno, 66 - Cupra Marittima (AP)
Asta giudiziaria
Richiedi visione
Invia
WhatsApp Casa&Aste
Cookie preference